Turning raw space into a fully functioning hands-on exhibit is a process that includes many steps along the way.
Phase I
Throughout 2021, we worked with our advisors to plan out concepts we would address throughout the Saltwater Stories exhibit. Coupling that knowledge with the available space (currently the Patterns gallery), our team developed a floorplan.
LICM’s exhibit staff developed a working floor plan during Phase I of the exhibit development process.
Phase II Updates
September 2021 through July 2023
After a floorplan is developed, our team continues through the iterative process of developing more detailed drawings, evolving the overall "look and feel" through graphic elements, determining what components will look like and how they function, and adjusting how the story is told throughout the exhibit.
LICM’s exhibit staff created more detailed drawings of exhibition areas like this one: a Bay House!
The exhibit team creates models of elements, like this salt marsh hay, to figure out how to build them for the exhibit.
Testing Ideas
Members of the exhibit development team seek advice from the most critical audience – children—as they test concepts and component ideas for the exhibit. The questions visitors ask and the way they interact with the activity and props helps our team to make everything as intuitive as possible.
Throughout the summer of 2022, we had weekly "Summer by the Sea" drop-in programs. Each Monday, we dove into fishing fun, created ocean-inspired art, or took a trip back in time to explore the historical importance of the sea.
Creative Technologist and Exhibit Developer Sean Allen spent time with visitors in July 2023 to test a clam sorting activity.
Working on Graphics
Paul Shields and Kaitlyn Hough work together to develop the “look and feel” of the exhibition through graphic elements. Here, Kaitlyn is illustrating a bay house.
3-D Models
LICM’s exhibit staff built a model of the exhibition space so they can move things around and see where everything will fit.
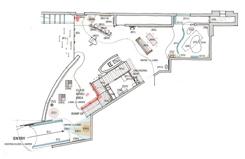
The Newest Model
Here is what an aerial view of the exhibition plan looks like as of January 2024! Staff are working hard to fit everything in and ensure that visitors can easily flow through the space.
The latest model: an aerial view of the exhibition plan, as of July 2023.
This project is made possible in part by the Institute of Museum and Library Services and Humanities New York.
